ズーム大島
ズームオオジマ※表示写真は、建物の外観写真・共用部分の写真を除き、同じ建物内のお部屋を一例として表示しています。写真に家具等の家財がある場合も、イメージ図となります。詳細は、お問い合わせのうえご確認下さい。
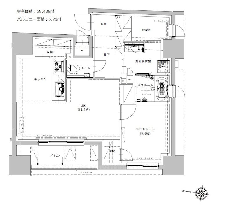
- 1LDK / 58.48m²~
- 江東区大島7-22-19
- 都営新宿線「大島」駅 徒歩4分
- 都営新宿線「東大島」駅 徒歩8分
-
参考賃料190,000円~197,000円
記載されている参考賃料は、独自で調査した賃料です。
間取りタイプによって異なりますので、最新情報は直接お問い合わせ下さいませ。※こちらのサイトは建物紹介サイトとなっております。
お部屋の空室や詳しいご内容に関しては、最新情報を確認の上ご説明させていただきます。
直接お問い合わせください。
この物件の特徴
この物件の設備
物件概要
| 物件種別 | 賃貸マンション |
|---|---|
| 間取り・専有面積 | 1LDK / 58.48m²~ |
| 築年月 | 2023年06月 |
| 規模・構造 | 鉄筋コンクリート造 14階建て |
| 駐車場 | |
| 保険 | 2年 |
| 保証金 | |
| 償却 | |
| 設備 | オートロック , 光ファイバー対応 , 宅配ボックス , 追焚き機能付 , 浴室換気乾燥機 , ウォシュレット , 玄関ダブルロック , ディンプルキー , 独立洗面台 , 脱衣室 , バストイレ別 |
| 特徴 | デザイナーズ , 二人入居可 , 分譲賃貸 , 保証人不要 , インターネット無料 , 1DK以上 , 築浅 |
| 取引態様 | 媒介 |
| 自社物件番号 | C-6136 |
- ※当サイトは、建物に関するサイトとなっております。
条件等は、お部屋ごとに異なる場合がございますので、お部屋の事に関しては、必ず募集条件を直接ご確認ください - ※分譲賃貸マンションの場合、お部屋によって家賃・管理費・敷金・礼金など賃貸借契約に関する設定が様々です。各所有者様によって、設備・仕様・内装などが変更されている場合もございます。
- ※ペット飼育やSOHO利用の可否に関しては、建物の管理規約で可能になっていても、お部屋の所有者様によって禁止の場合もございますのでご注意下さい。
- 詳細はお電話、メール、LINEにてスタッフまでご相談下さい。












★独立洗面台★温水洗浄便座★水商売相談★
★☆★建物の特徴★☆★
TVモニター付きオートロック/独立洗面/宅配BOX/ダブルロック
★☆★お部屋の特徴★☆★
システムキッチン/バス・トイレ別/独立洗面台/脱衣所/洗濯機室内/浴室乾燥機/温水洗浄便座/クローゼット/照明/フローリング/バルコニー/エアコン/モインターホン/24時間換気システム/3口ガスコンロ/シャンプードレッサー/追い炊き
(※上記は部屋により異なる場合がございます)
★☆★近くのお店★☆★
セブンイレブン150m/ローソン260m
★☆★近くの道路★☆★
新大橋通り
追焚機能付バスや浴室乾燥機、温水洗浄便座、独立洗面台、システムキッチン、エアコン、無料インターネット回線などの室内設備も整い、日々の暮らしを快適にサポートしてくれます。
オートロックや防犯カメラ、ダブルロック、ディンプルキー、モニター付インターホンも採用され、安心・安全のセキュリティ体制です。宅配ボックスもありますので荷物の受け取りにも重宝します。