新宿・六本木エリア新着物件情報
赤坂水商売賃貸情報♪フロムファースト赤坂
今日の、オススメ物件はこちらです (^^)/
★気になる物件の詳細はこちら★
20.8万円~(管理費:1万円)
敷1ヶ月~礼1ヶ月~
44.46m2~
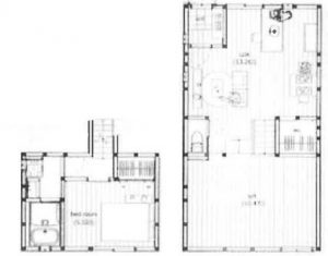
物件概要
港区赤坂7-5-15
東京メトロ千代田線「赤坂」駅 徒歩7分
東京メトロ千代田線「乃木坂」駅 徒歩10分
都営大江戸線「青山一丁目」駅 徒歩10分
設備
★☆★建物の特徴★☆★
モニター付きオートロック/宅配ボックス/エレベーター/防犯カメラ/ディンプルキー/ゴミ置き場/CATVアンテナ
★☆★お部屋の特徴★☆★
システムキッチン/バス・トイレ別/独立洗面台/脱衣所/洗濯機室内/温水洗浄便座/クローゼット/シューズボックス/照明/フローリング/バルコニー/エアコン/モニター付きインターホン/24時間換気システム
(※上記は部屋により異なる場合がございます)
★☆★近くのお店★☆★
ファミリーマート300m
★☆★近くの道路★☆★
青山通り
★気になるお写真はこちら!!★


新宿・六本木エリアを中心とした賃貸物件が満載!!
敷金礼金ゼロ、初期費用分割、保証人不要、ペット可物件多数!ナイトワークの方必見です!!
水商売専門不動産の『CABABEYA』になんでもお任せ下さい
ご案内![]()
歌舞伎町あずま通り店![]()
【住所】新宿区歌舞伎町1-8-3 良川ビル2F
【TEL】03-6205-5732
【営業時間】10:00~20:00(お問い合わせ受付24H)
【定休日】年末年始
新宿本店![]()
【住所】新宿区西新宿7-12-3 小島ビル3F
【TEL】03-6279-2032
【営業時間】10:00~20:00(お問い合わせ受付24H)
【定休日】年末年始
池袋店![]()
【住所】豊島区池袋2-4-2 YKビル1F
【TEL】03-6907-2660
【営業時間】10:00~20:00(お問い合わせ受付24H)
【定休日】年末年始


