新宿・六本木エリア新着物件情報
2022.7.28
牛込柳町水商売賃貸情報♪リビオ神楽坂
今日の、オススメ物件はこちらです (^^)/
★気になる物件の詳細はこちら★
30万円~(管理費:2万円)
敷1ヶ月~礼1ヶ月~
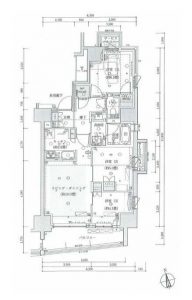
3SLDK / 64.6m2~
物件概要
新宿区北山伏町2-3
都営大江戸線「牛込柳町」駅 徒歩5分
都営大江戸線「牛込神楽坂」駅 徒歩6分
東京メトロ東西線「神楽坂」駅 徒歩10分
設備
オートロック/防犯カメラ/24時間セキュリティシステム/ディンプルキー/ダブルロック/宅配ボックス/エレベーター/内廊下/駐輪場/敷地内ゴミ置場/BS/CS/CATV/光ファイバー/南向き/分譲タイプ
★気になるお写真はこちら!!★

新宿・六本木エリアを中心とした賃貸物件が満載!!
敷金礼金ゼロ、初期費用分割、保証人不要、ペット可物件多数!ナイトワークの方必見です!!
水商売専門不動産の『CABABEYA』になんでもお任せ下さい
ご案内![]()
歌舞伎町あずま通り店![]()
【住所】新宿区歌舞伎町1-8-3 良川ビル2F
【TEL】03-6205-5732
【営業時間】10:00~20:00(お問い合わせ受付24H)
【定休日】年末年始

新宿本店![]()
【住所】新宿区新宿3-21-4 新宿ニュートーワビル1階
【TEL】03-6279-2032
【営業時間】10:00~20:00(お問い合わせ受付24H)
【定休日】年末年始
池袋店![]()
【住所】豊島区池袋2-4-2 YKビル1F
【TEL】03-6907-2660
【営業時間】10:00~20:00(お問い合わせ受付24H)
【定休日】年末年始

